Schutztüren & Schutzlüken
Sicherheit ist kein Luxus, sondern eine Notwendigkeit – besonders in Zeiten wachsender technischer, industrieller und geopolitischer Herausforderungen. Schutztüren und Luken bilden das Herzstück moderner Schutzräume und sind entscheidend für den wirksamen Schutz von Menschen, Kritischer Infrastruktur und sensiblen Bereichen.
Shelters steht für innovative, zuverlässige und geprüfte Lösungen im Bereich Schutzraumtechnik. Unsere Schutztüren und Schutzraumluken wurden entwickelt, um höchsten Anforderungen an Widerstandsfähigkeit, Dichtheit und Langlebigkeit gerecht zu werden. Sie schützen zuverlässig vor Explosionen, Druckwellen, Strahlung, giftigen Gasen sowie mechanischen Einwirkungen.
Dank robuster Konstruktion, hochwertiger Materialien und moderner Fertigungstechnologien bieten unsere Produkte maximale Sicherheit bei gleichzeitig hoher Funktionalität und Bedienfreundlichkeit.
Ob für private Schutzräume, öffentliche Einrichtungen, industrielle Anwendungen oder militärische Anlagen – unsere Lösungen lassen sich individuell an die jeweiligen baulichen und sicherheitstechnischen Anforderungen anpassen.
Aufbau einer Schutzraumtür
Ein zentrales Bauteil jedes Schutzraumes ist ein Wiederstandsfähiger und Geschüzter Eingangsbereich. Das Türblatt aus hochfestem Stahl stellt die Grundlage einer Schutzraumtür dar. Zur Erhöhung der strukturellen Steifigkeit und Widerstandsfähigkeit wird das Türblatt innenliegend durch zusätzliche Verstärkungsrippen oder Profilrahmen ausgesteift.
Je nach Ausführungsvariante kann ergänzend eine Schicht aus ballistischem Beton integriert werden, wodurch die Widerstandsfähigkeit gegen Splitter, Beschuss, Druckwellen und thermische Einwirkungen deutlich erhöht wird.
Das Verriegelungssystem ist modellabhängig ausgeführt und kann als Mehrpunktverriegelung mit Drücker-, Hebel- oder Handradmechanismus realisiert sein. Dadurch wird ein sicheres, schnelles und mechanisch belastbares Verriegeln sowohl von innen als auch von außen ermöglicht. Die Gasdichtheit wird durch den Einsatz speziell ausgelegter Elastomerdichtungen sichergestellt. Diese ist insbesondere bei chemischen, biologischen oder toxischen Bedrohungen von entscheidender Bedeutung.
Alle Stahlkomponenten sind mit einem Korrosionsschutzsystem versehen, bestehend aus einer hochwertigen Grundbeschichtung oder einer mehrschichtigen Korrosionsschutzlackierung. Dies gewährleistet einen langfristigen Schutz gegen Feuchtigkeit, aggressive Medien und Umwelteinflüsse.
Durch das zusammenspiel von Materialien, Verarbeitung und Versiegelung, entsteht eine Schutzraumtür welche Schutzräume über Jahrzehnte vor Gefahren schützt.
Schutzraumtürmodelle im Überblick
- Material: Stahl-Türblatt mit Verstärkungen; Gummidichtung für Gasdichtigkeit
- Verschluss: Zwei Türgriffe (innen und außen)
- Montage: In Beton oder zur Nachrüstung (Retrofit)
- Öffnungsrichtung: Links/Rechts
- Druckbeständigkeit: 1,0 bar
900 × 2000 mm | Gewicht: 172 kg
1200 × 2000 mm | Gewicht: 204 kg
- Material: Stahl-Türblatt mit Verstärkungen; Gummidichtung für Gasdichtigkeit
- Verschluss: Zwei Griffe mit Hebeln (innen und außen)
- Montage: In Beton oder zur Nachrüstung (Retrofit)
- Öffnungsrichtung: Links/Rechts
- Druckbeständigkeit: 1,0 bar; Zusätzlich bruchfest
900 × 2000 mm | Gewicht: 180 kg
1200 × 2000 mm | Gewicht: 224 kg
Einflügelige Drehflügeltüren für Schutzräume – speziell konzipiert für Neubauten und Modernisierungsvorhaben. Ausgestattet mit L-förmigem Türrahmen und werkseitiger Grundierungsbeschichtung. Zeichnen sich durch außergewöhnlich hohe mechanische Widerstandsfähigkeit aus und eignen sich sowohl für die Integration in Betonkonstruktionen als auch für nachträgliche Einbauten im Bestand.
- Material: Stahl-Türblatt mit Verstärkungen; Gummidichtung für Gasdichtigkeit
- Verschluss: Hebelbetätigung (innen und außen)
- Montage: In Beton oder zur Nachrüstung (Retrofit)
- Öffnungsrichtung: Links/Rechts
- Druckbeständigkeit: 4,4 bar
Ausführungen:
900 × 2000 mm | Gewicht: 219 kg
1200 × 2000 mm | Gewicht: 260 kg
- Material: Stahl-Türblatt mit Verstärkungen; Gummidichtung für Gasdichtigkeit
- Verschluss: Hebelbetätigung (innen und außen)
- Montage: In Beton oder zur Nachrüstung (Retrofit)
- Öffnungsrichtung: Links/Rechts
- Druckbeständigkeit: 9 bar
900 × 2000 mm | Gewicht: 443 kg
1200 × 2000 mm | Gewicht: 557 kg
- Material: Stahl + ballistischer Beton
- Verschluss: Drehräder
- Montage: In Beton oder zur Nachrüstung (Retrofit)
- Öffnungsrichtung: Links/Rechts
- Druckbeständigkeit: 3 bar Explosionsdruck, 9 bar Überdruckbelastung bei 20 ms dauer
- Dichtigkeit: DIN EN 12207 Klasse 4; Kugelsicher, feuer- und splitterbeständig
900 × 2000 mm | Gewicht: 700 kg
1200 × 2000 mm | Gewicht: 930 kg
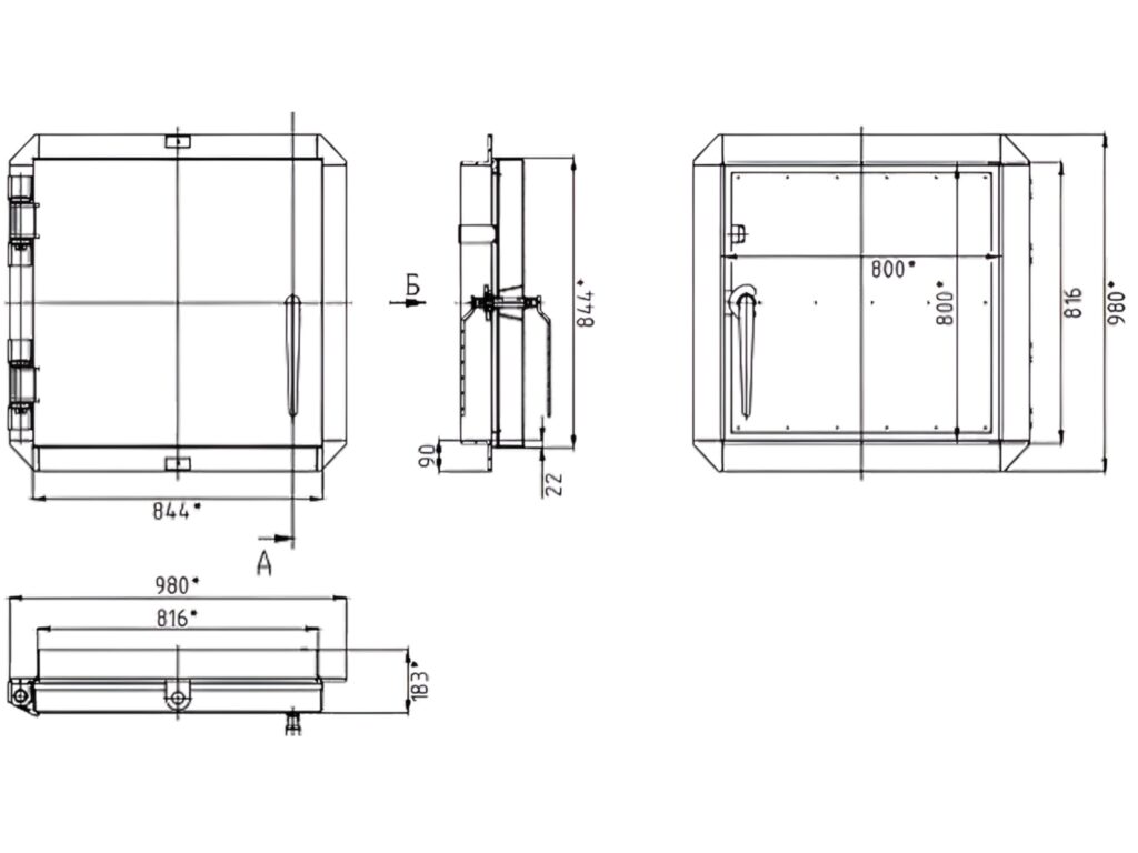
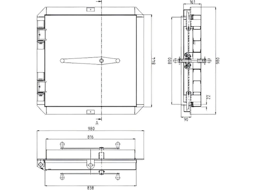
Schutzraumluken im Überblick
- Material: Stahlkonstruktion mit Gummidichtung
- Verschluss: Ein Griff
- Montage: In Beton oder zur Nachrüstung (Retrofit)
800 × 800 mm, Gewicht: 85kg
- Material: Stahlkonstruktion mit Gummidichtung
- Verschluss: Ein Griff
- Druckbeständigkeit: 1 bar; Zusätzlich splitterfest
- Montage: In Beton oder zur Nachrüstung (Retrofit)
800 × 800 mm | Gewicht: 90 kg
600 × 900 mm | Gewicht: 90 kg
- Material: Stahlkonstruktion mit Gummidichtung
- Verschluss: Ein Griff
- Widerstandsfähigkeit: 4,4 bar
- Montage: In Beton oder zur Nachrüstung (Retrofit)
800 × 800 mm, Gewicht: 93 kg
Shelters
Shelters ist ein spezialisierter Anbieter für hochwertige Schutzraumtechnik und Sicherheitslösungen. Das Unternehmen entwickelt, produziert und vertreibt professionelle Schutztüren, Schutzraumluken und sicherheitsrelevante Komponenten für zivile, industrielle und militärische Anwendungen.
Produkte von Shelters zeichnen sich durch robuste Stahlkonstruktionen, präzise Fertigung und den Einsatz moderner Verriegelungs- und Dichtungssysteme aus.
Sie bieten zuverlässigen Schutz vor Explosionen, Druckwellen, Splittern, giftigen Gasen sowie chemischen und biologischen Gefahren. Bei Shelters erhalten Sie geprüfte Qualität, ein Höchstmaß an Sicherheit und langlebige Schutzlösungen, die extra für extreme Bedingungen konzipiert sind.
Fragen?
Sie haben noch Fragen? Kein Problem – wir helfen Ihnen gerne weiter! Ob technische Details, individuelle Lösungen oder ein persönliches Angebot – unser Team steht Ihnen mit Fachwissen und Erfahrung zur Seite.
Nutzen Sie einfach unser Kontaktformular oder rufen Sie uns direkt an – wir freuen uns auf Ihre Anfrage!
